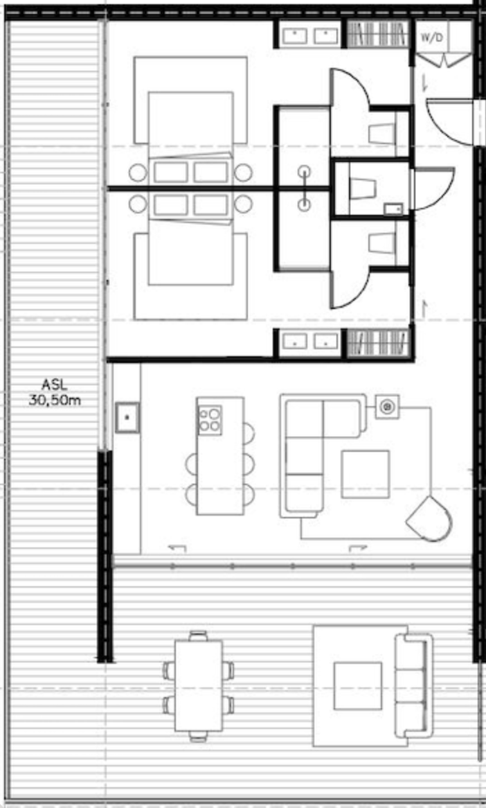
Unit A — Corner Residence

Positioned on the left corner of the ground floor, Unit A benefits from a dual-aspect layout that floods the living spaces with natural light from two sides. The open-plan living and dining area flows seamlessly onto a generous private terrace with direct pool views.

Both bedrooms are en-suite, offering complete privacy for residents and guests alike. The corner position provides an added sense of seclusion, with the master bedroom enjoying views across the landscaped gardens and the infinity pool beyond.

2
Bedrooms
2
En-suite Baths
110
Size (m²)
Corner
Position

Floor Plan

Unit A — 2 Bedroom | 110 m²
Floor Plan - Unit A

Unit B — Grand Residence

The largest of the three poolside apartments, Unit B commands the central position with an enormous private balcony spanning the full width of the residence. Both bedrooms face directly onto the swimming pool and terrace, with uninterrupted views stretching out across the hillside.

The master suite is truly exceptional — running from the front to the back of the entire property, it features a walk-through dressing area with extensive wardrobe space and a generous bathroom with dual vanity and rainfall shower. At 130 m², this unit delivers a sense of scale rarely found in Caribbean apartment living.

2
Bedrooms
2
En-suite Baths
130
Size (m²)
Centre
Position

Floor Plan

Unit B — 2 Bedroom | 130 m²
Floor Plan

Unit C — Garden Residence

Tucked into the right corner of the ground floor, Unit C is defined by its unique relationship with the outdoors. A stunning section of the infinity pool sits directly in front of the residence, while a private enclosed garden wraps around both bedrooms — creating a rare sense of tropical seclusion.

Step out from either bedroom directly into your own landscaped garden, shielded by lush planting for complete privacy. The open-plan living area connects to a covered terrace with front-row views of the pool deck. For those seeking a true indoor-outdoor Caribbean lifestyle, Unit C is unmatched.

2
Bedrooms
2
En-suite Baths
110
Size (m²)
Corner
Position

Floor Plan

Unit C — 2 Bedroom | 110 m²
Floor Plan

Amenities & Features

Infinity Pool
Fitness Centre
24/7 Security
Covered Parking
Landscaped Gardens
Property Management
Smart Home System
Solar Powered

Location & Connectivity

Willemstad Centre — 5 min
Centrum Supermarket — 3 min
Mambo Beach — 10 min
Hato Airport — 15 min

Interested in This Residence?

Schedule a viewing or get more information about financing and availability

Request More Info Chat on WhatsApp
Floor Plan